Zurück zur Übersicht
Die Wohnungen befindet sich im 4. Obergeschoss eines Mehrfamilienhauses und ist bequem über einen Fahrstuhl zu erreichen.
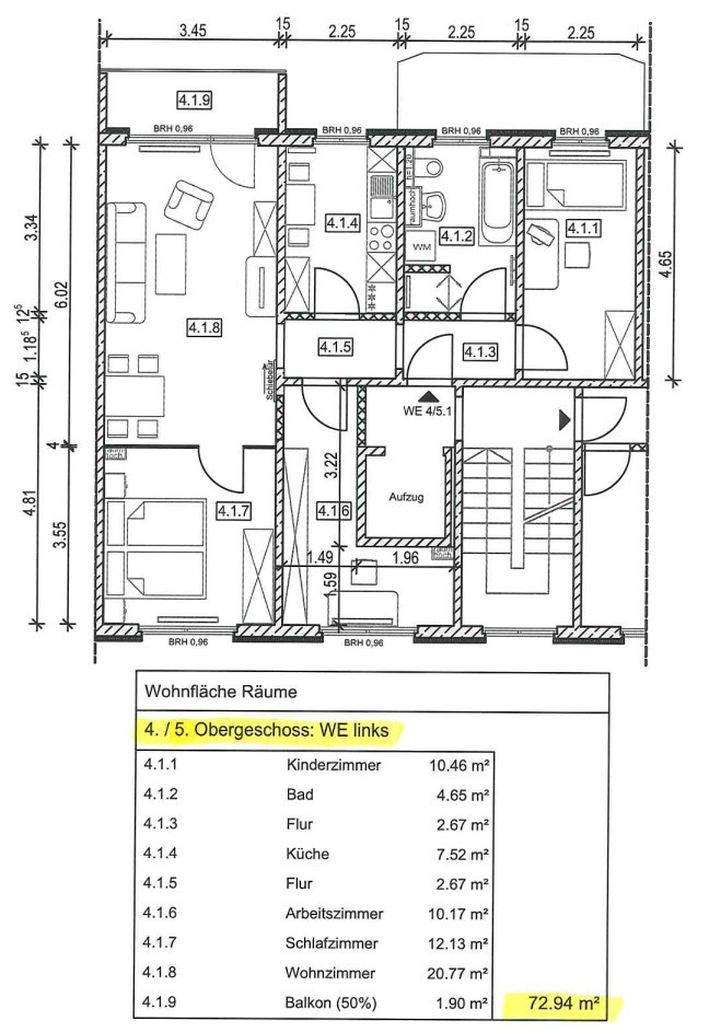
Die Wohnung besteht aus einem geräumigen Wohnzimmer mit Zugang zu einem großen Balkon, einer Küche, ein Schlafzimmer, 2 Kinderzimmer, einem Flur und einem modernen Badezimmer mit Badewanne und Dusche und einem großen Fenster.
Die Wohnung ist mit Vinylboden ausgelegt und im Badezimmer befinden sich moderne graue Fliesen.
Die Wohnung wird ohne Stellplatz angeboten, Parkplätze befinden sich jedoch in Vielzahl direkt vor der Haustür.
Ihre Bewerbung für die Wohnung senden Sie gerne an: ruegen@blaesse-immobilien.de
Dazu füllen Sie bitte die beigefügte Mieterselbstauskunft aus und schicken uns Diese nebst allen dort geforderten Unterlagen.
Weitere Informationen zum Objekt sind vertraulich! Bitte haben Sie Verständnis, dass wir aus Sicherheitsgründen nur Anfragen mit Namen, Anschrift und Telefonnummer beantworten können. Die Inhalte unsere Angebote werden mit größter Sorgfalt erstellt. Für Richtigkeit, Vollständigkeit und Aktualität dieser Inhalte kann der Makler keine Haftung übernehmen, da sie auf Angaben der Eigentümer beruhen. Zwischenzeitliche Vermietung und Preisänderungen sind vorbehalten. Wir freuen uns auf Ihre Anfrage! Sehen Sie unsere ganze Angebotspalette unter: www.blaesse-immobilien.de
Altersgerecht modernisierte 4-Zimmer-Wohnung in Samtens mit Aufzug zu vermieten
511,00 €
Kaltmiete
4
Zimmer
72,94 m²
Fläche
Preise & Kosten
Kaltmiete
511,00 €
Warmmiete
766,00 €
Nebenkosten
109,00 €
Heizkosten
146,00 €
Maklerprovision inkl. USt.
Ja
Die Immobilie
Objektart
Wohnung mieten
Objekttyp
Etagenwohnung
Wohnfläche
72,94 m²
Zimmer
4
Badezimmer
1
Bad mit ebenerdiger Dusche, Badewanne und Fenster
Balkon
Aufzug
Vinylboden
Balkon
Aufzug
Vinylboden
Bau & Energie
Zustand
Modernisiert
Energiepass
Verbrauch
Objektbeschreibung
Angeboten wird Ihnen eine modernisierte 4-Raum-Wohnungen mit Balkon in der Ringstraße in Samtens.Die Wohnungen befindet sich im 4. Obergeschoss eines Mehrfamilienhauses und ist bequem über einen Fahrstuhl zu erreichen.
Die Wohnung besteht aus einem geräumigen Wohnzimmer mit Zugang zu einem großen Balkon, einer Küche, ein Schlafzimmer, 2 Kinderzimmer, einem Flur und einem modernen Badezimmer mit Badewanne und Dusche und einem großen Fenster.
Die Wohnung ist mit Vinylboden ausgelegt und im Badezimmer befinden sich moderne graue Fliesen.
Die Wohnung wird ohne Stellplatz angeboten, Parkplätze befinden sich jedoch in Vielzahl direkt vor der Haustür.
Ihre Bewerbung für die Wohnung senden Sie gerne an: ruegen@blaesse-immobilien.de
Dazu füllen Sie bitte die beigefügte Mieterselbstauskunft aus und schicken uns Diese nebst allen dort geforderten Unterlagen.
Lage
Samtens hat etwa 2000 Einwohner und befindet sich etwa 20 Kilometer nordöstlich von Stralsund und etwa zehn Kilometer südwestlich von Bergen. Die Bundesstraße 96 sowie die Bahnstrecke Stralsund–Sassnitz verlaufen durch den Ort. Samtens ist ein beliebter Wohnort mit steigenden Einwohnerzahlen. Im Ort gibt es diverse Einkaufsmöglichkeiten, Arztpraxen eine Sparkassenfiliale, die Volksbank, eine Grundschule, Kindergarten, Tagesmutti, die Amtsverwaltung, einige Gaststätten, den Bahnhof, Sportplatz, Physiotherapien, mittelständiche Betriebe, das Sportzentrum "Tiet un Wiel" mit Schwimmhalle, Tennis, der größten Kletterwand Norddeutschlands und dem Störtebecker-Sporthotel. Ein gut ausgebautes Netz von Radwegen lädt zu Fahrten in die Umgebung ein. Durch die neue Umgehung 96n hat sich die Fahrtzeit mit dem Auto nach Stralsund auf etwa 16 Minuten reduziert. In nur 25 Minuten sind Sie mit dem Auto in Binz und können den schönen Badestrand der Insel genießen!Sonstiges
Gern organisieren wir einen Besichtigungstermin für Sie. Wir bitten dazu um Angabe Ihrer Telefonnummer (tagsüber) und Ihrer Anschrift und bei großem Interesse praktischerweise gleich um Terminvorschläge für eine Besichtigung Ihrerseits. Wann möchten Sie angerufen werden?Weitere Informationen zum Objekt sind vertraulich! Bitte haben Sie Verständnis, dass wir aus Sicherheitsgründen nur Anfragen mit Namen, Anschrift und Telefonnummer beantworten können. Die Inhalte unsere Angebote werden mit größter Sorgfalt erstellt. Für Richtigkeit, Vollständigkeit und Aktualität dieser Inhalte kann der Makler keine Haftung übernehmen, da sie auf Angaben der Eigentümer beruhen. Zwischenzeitliche Vermietung und Preisänderungen sind vorbehalten. Wir freuen uns auf Ihre Anfrage! Sehen Sie unsere ganze Angebotspalette unter: www.blaesse-immobilien.de